Обяви За нас Контакти
Продава МАГАЗИН
град София, Бъкстон
300 000 €
586 749.00 лв.

(1 744 €, 3 410.97 лв./m2)
Цената е с включено ДДС
История на цената
Коригирана в 8:07 на 23 октомври, 2025 год.
Обявата е посетена 268 пъти.
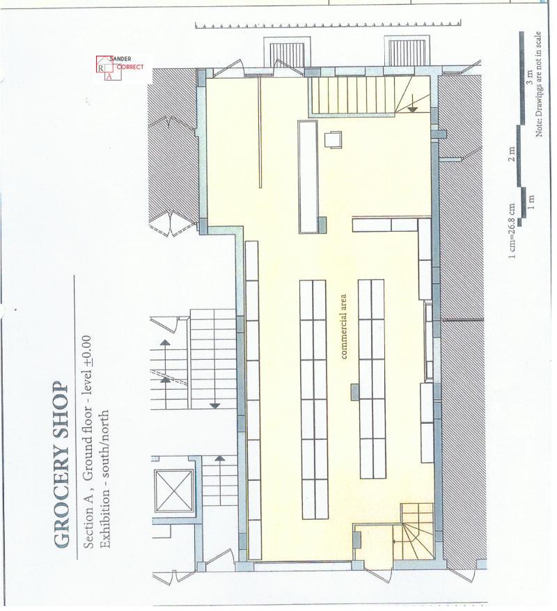
Площ:
172 m2
Етаж:
Партер от 7
Газ:
НЕ
ТEЦ:
Лок.отопл.
Строителство:
Тухла, Въведен в експлоатация 2020 г.

Описание на имота:


Разрешение за ползване от 2020г. Прекрасна нова сграда в квартал Бъкстон. До булевард Братя Бъкстон. Бърз достъп до центъра и Околовръстен път. В близост са разположени няколко супермаркета, пазар, детски градини, училища, спирка на тролейбус 2 и 9.
Статутът е на Магазин за пакетирани хранителни стоки. Площта по нотариален акт е 145.38 кв.м. (171.34 кв.м. с общите части). Два входа. Подходящ е и за офис, представителство, клуб, онлайн магазин и други.
Районът е гъсто населен и с перспектива за бъдещо развитие. Това прави имота една отлична инвестия. За повече информация и огледи: Пламен Петров - 0878430485.
Виж всички обяви в sanderimoti.bazar.bg или тук
Особености
Тухла
Асансьор
С паркинг
Контрол на достъпа
Саниран
За контакт:
0878430485
Агенция:
САНДЕР КОРЕКТ РА
0888959939
САНДЕР КОРЕКТ РА logo
Медал за прослужено време
В imot.bg от 2008 г.
sanderimoti.imot.bg
Адрес:
област София, гр. София, кв.Лозенец,'Вискяр резиденс', ул.Вискяр планина 11
http://www.sandercorrect.bg
ИЗПРАТИ ЗАПИТВАНЕ
ИЗПРАТИ ЗАПИТВАНЕТО

Продава МАГАЗИН
град София, Бъкстон
Обява: 1l164974305169971

300 000 €
586 749.00 лв.
История на цената
(1 744 €, 3 410.97 лв./m2)

Цената е с включено ДДС
ЗАПАЗИ ОБЯВАТА

Местоположение: град София, Бъкстон

Допълнителни данни за имотите в района и сравнение с други райони: Търсене в АРХИВ 2013 - 2025 г.











Добави/редактирай
вид имот и район
*Средните цени са определени чрез медиана стойност.