Обяви За нас Контакти
Продава 2-СТАЕН
град София, Медицинска академия
бул. Ген. Ед. И. Тотлебен
259 000 €
506 559.97 лв.

(3 700 €, 7 236.57 лв./m2)
Не се начислява ДДС
История на цената
Публикувана в 15:49 на 4 март, 2026 год.
Обявата е посетена 464 пъти.
Площ:
70 m2
Етаж:
5-ти от 7
ТEЦ:
ДА
Строителство:
Тухла, Въведен в експлоатация

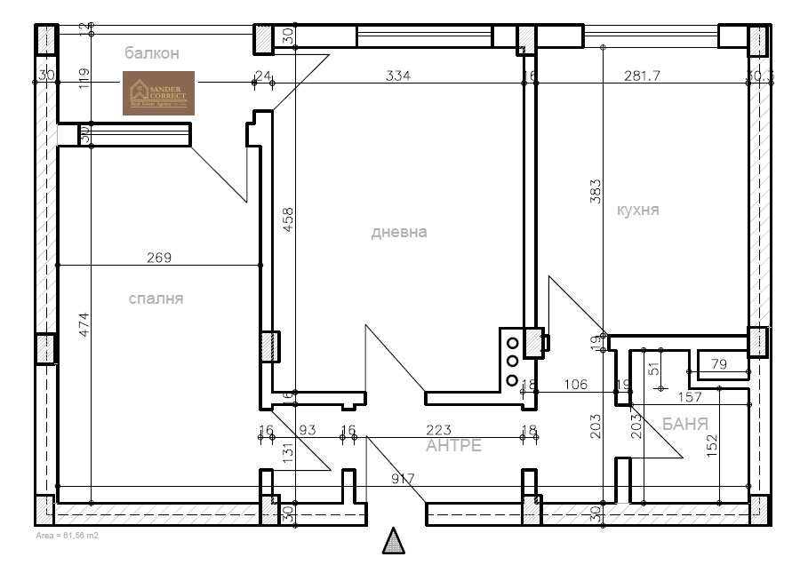
Описание на имота:


ВИДЕО РАЗХОДКА В ОБЯВАТА!
Сандер Корект има удоволствието да Ви представи двустаен апартамент за ремонт с отделна кухня /с опция за преустройство в 3-стаен/ находящ се в сграда (магазин 'Шкода') солидно строителство с широки и хубави общи части в непосредствено близост до ВМА. Апартаментът е тих, с красива гледка към ВМА, като е разположен в частта на блока откъм към ул. Богдановец и ул. Ами Буе. ЗП 62 кв.м. Класическото и предпочитаното разпределение прави имота подходящ както за дългосрочна инвестиция, така и за обитаване. Изложението е юг/изток, с повече юг и с усещане за простор. Разпределението е както следва: вход в коридор, надясно баня, отделна кухня, направо от коридора хол, наляво спалня. Спалнята и коридора имат обща тераса. Прилежащо мазе. Събрано финансиране за ремонт на общи части и покрив. Тел. за контакт: 0892014504, Иванова
Особености
Тухла
Асансьор
Обзаведен
Контрол на достъпа
За ремонт
За контакт:
0892014504
Агенция:
САНДЕР КОРЕКТ РА
0888959939
САНДЕР КОРЕКТ РА logo
Медал за прослужено време
В imot.bg от 2008 г.
sanderimoti.imot.bg
Адрес:
област София, гр. София, кв.Лозенец,'Вискяр резиденс', ул.Вискяр планина 11
http://www.sandercorrect.bg
ИЗПРАТИ ЗАПИТВАНЕ
ИЗПРАТИ ЗАПИТВАНЕТО

Продава 2-СТАЕН
град София, Медицинска академия
бул. Ген. Ед. И. Тотлебен
Обява: 1b177263216714399

259 000 €
506 559.97 лв.
История на цената
(3 700 €, 7 236.57 лв./m2)

Не се начислява ДДС
ЗАПАЗИ ОБЯВАТА

Местоположение: град София, Медицинска академия, бул. Ген. Ед. И. Тотлебен

Допълнителни данни за имотите в района и сравнение с други райони

Покажи

Период

и 3 месеца

* Средните цени са определени чрез медианна стойност